建商與品牌
▸開發公司:Eslead 株式會社
▸施工公司:株式會社錢高組 大阪支社
▸設計監造:株式会社トキ設計
▸管理公司:エスリード管理株式會社
附近交通
▸ JR東西線「海老江站」步行約14分
▸阪神本線「野田站」步行約14分
▸大阪Metro千日前線「野田阪神站」 步行約14分
建築概要
▸建築構造:鋼筋混凝土造 地上12層 地下1層
▸建築完成:2009年03月 (平成21年)
▸基地面積:1551.21平方公尺 (約469.241坪)
▸建築年齡:16年
▸總 戶 數:132戶
物件規劃
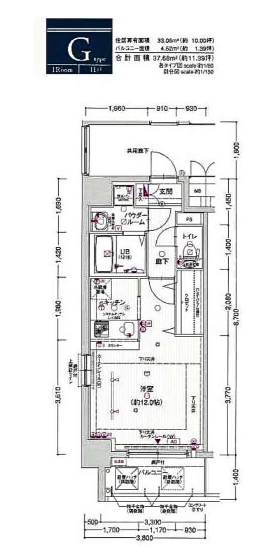
▸戶型格局:一房一廚一衛
▸單戶面積:33.06平方公尺 (約10坪)
▸陽台面積:4.62平方公尺 (約1.397坪)
停車資訊
▸汽 車:34台 (機械式18 + 平面式16)
▸機 車:12台
▸自行車:120台
室內設施
◇ 系統廚具
◇ 浴室乾燥機
◇ 免治馬桶
◇ 冷暖空調
◇ 洗衣空間
公共設施
◇ 宅配收納箱
◇ 防盜監視系統
◇ 感應式門禁系統
其他設施
◇ 24小時垃圾集中區
◇ 自行車機車停放區
◇ 挑高大廳設計
◇ 電梯寬敞明亮
其他特色說明
▸ 坐落於大阪市北區交通樞紐地段,鄰近梅田站與主要商業建設區域
▸ 多條地鐵與JR路線交會,通勤至市中心與周邊辦公區域十分便利
▸ 鄰近淀川河畔與季節活動區,部分戶別享有開闊景觀條件
▸ 目前物件為帶租約銷售,實際承租條件依合約內容為準
戶型格局參考圖

設施參考圖



再開發區與位置參考圖

※ 本公司所載資訊不構成任何投資保證或承諾,投資房地產具風險,請投資人審慎評估。物件資料如登載錯誤,請以正式不動產登記及契約文件為準 ※


