建商與品牌
▸開發公司:TUKUYOMI HOLDINGS株式會社
▸施工公司:未提供
▸設計監造:株式會社礎
▸管理公司:未提供
附近交通
▸未提供
建築概要
▸建築構造:鋼骨造 地上10層
▸建築完成:未提供
▸基地面積:1131.74 ㎡(約342.351坪)
▸建築年齡:0年
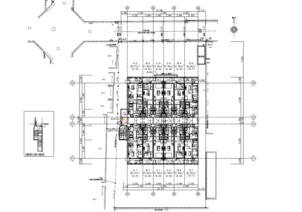
▸總 戶 數:108戶
物件規劃
▸戶型格局:1K、1DK、1LDK
▸單戶面積:未提供
▸陽台面積:未提供
停車資訊
▸汽 車:36台
▸機 車:10台
▸自行車:108台
室內設施
◇ 系統廚具
◇ 步入式衣帽間
公共設施
◇ 宅配收納箱
◇ 防盜監視系統
◇ 集會室
◇ 寵物洗腳區
其他設施
◇ 9人座電梯
◇ 附有攝影機自動門鎖
其他特色說明
▸基地地形狹長且配置多種類型停車場(平面、機械式與滑動式車位等),生活採買便利。
▸建築外觀採都會時尚的洗鍊設計,一樓設有優雅的迎賓空間與綠化植栽。
▸鄰近中堂寺通,步行可達「AEON MALL 京都五条」大型購物中心。
戶型格局參考圖

參考圖

※ 本公司所載資訊不構成任何投資保證或承諾,投資房地產具風險,請投資人審慎評估。物件資料如登載錯誤,請以正式不動產登記及契約文件為準 ※