建商與品牌
▸開發公司:大阪ガス都市開発株式会社、オリックス不動産株式会社...等
▸施工公司:うめきた2期共同企業体
▸設計監造:うめきた2期区域設計監理業務共同企業体
▸管理公司:未提供
附近交通
▸JR東海道本線「大阪」站(中央北口) 徒步7分
▸阪急神戶線 保塚線 京都線「大阪梅田」站 徒步9分
建築概要
▸建築構造:鋼筋混凝土造,部分鋼骨造,地上46層
▸建築完成:預計2025年12月下旬竣工
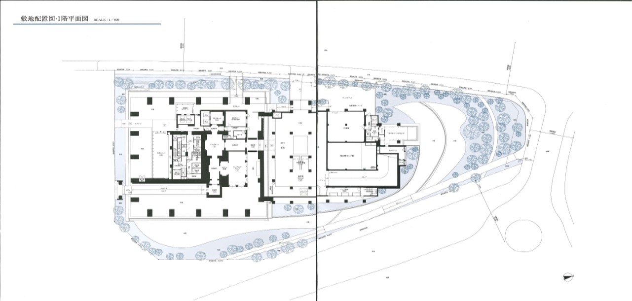
▸基地面積:3540.6㎡(約1071.031坪)
▸建築年齡:未滿1年
▸總 戶 數:484戶
物件規劃
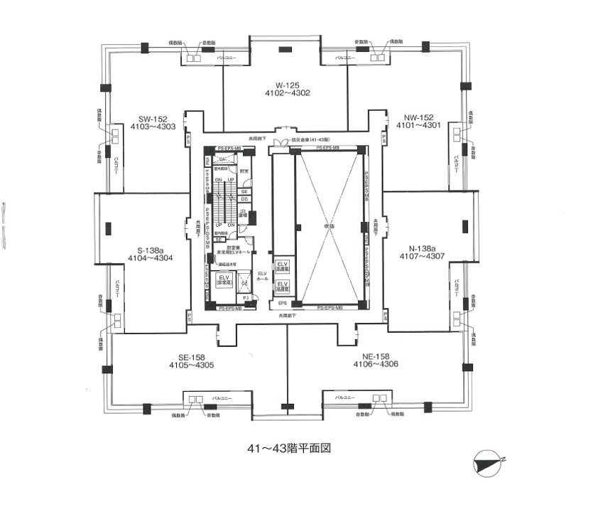
▸戶型格局:1K・1LDK・2K・2LDK
▸單戶面積:23.68~47.38平方公尺(約7.163~14.332坪)
▸陽台面積:4.21~5.93平方公尺 (約1.273~1.793坪)
停車資訊
▸汽 車:180台
▸機 車:28台
▸自行車:485台
室內設施
◇ 全熱交換器
◇ 地暖系統
◇ 洗碗機
◇ 節能熱水器
公共設施
◇ 多部電梯
◇ 防盜監視系統
◇ 各樓層24小時垃圾處理區
其他設施
◇ 高規格免震構造
◇ 緊急備用發電機
◇ 電子門鎖
◇ 防盜感測系統
其他特色說明
▸ 位於備受全球矚目的「Grand Green Osaka」梅田大規模再開發區核心。
▸ 具備直通JR大阪站的極高交通與地段價值,無縫接軌都會繁華。
▸ 結合自然綠意與先端科技,公共空間採用大理石與高級地毯等奢華材質。
戶型格局參考圖


設施參考圖

※ 本公司所載資訊不構成任何投資保證或承諾,投資房地產具風險,請投資人審慎評估。物件資料如登載錯誤,請以正式不動產登記及契約文件為準 ※